ARQUITETURA NA PERIFERIA
- Laura Méndez
- 14 oct 2025
- 1 Min. de lectura
Actualizado: 5 nov 2025
BRASIL
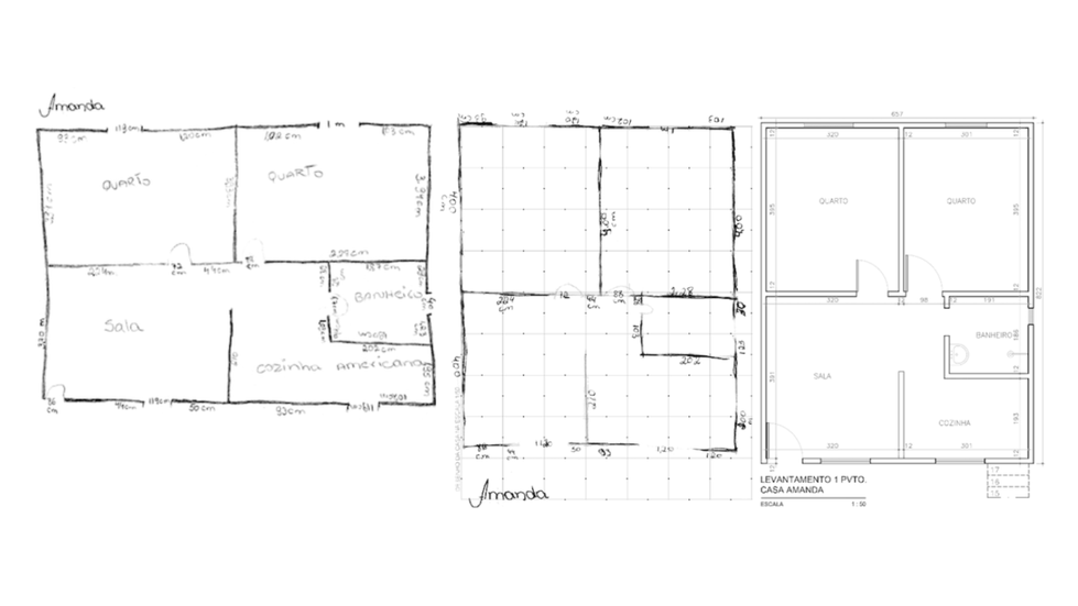
Colectivo autogestionado por mujeres de barrios periféricos. Cuestionan la arquitectura tradicional y articulan justicia socioespacial, de género y climática desde saberes y tecnologías locales a través de talleres, microfinanciamiento y capacitación práctica para la autonomía.

CONTEXTO
PROCESO



















Comentarios